Voila on se lance dans un projet d'autoconstruction, après de nombreuses tergiversations, et de difficultés pour maitriser le logiciel architecture et construction 3D Pro CAD. Nous avons enfin établi un pré plan que nous allons soumettre à l'architecte, pour critiques et améliorations, modifications. J'ai bien essayé de réduire les surfaces mais mon épouse veut de l'espace, une grande cuisine, arrière cuisine, dressing etc... en bref tout grand! nous arrivons donc avec un SHON de 215 m²
Nous voulons que cette construction soit conforme aux normes BBC, mais parfois je doute qu'on y arrive vu la complexité des choix des matériaux et des méthodes de réalisation, même les professionnels éprouvent de grosses difficultés pour y parvenir. Je me demande aussi si le jeu en vaut la chandelle en terme de coût.
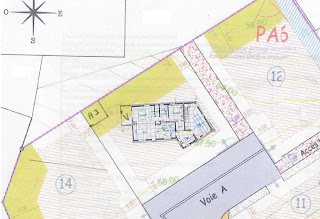
J'ai commencé à parler du plan, j'aurai du commencer par le terrain que nous n'avons pas encore mais il parait que c'est imminent (cela fait déjà 4 ans que nous sommes inscrits pour ce terrain).
C'est un terrain dans un lotissement communal du littoral Breton des côtes d'Armor.
Il fait 839m², en impasse en fond de lotissement, sa façade est orientée sud est.
Il n'y aura qu' une seule voiture dans le garage pour laisser de la place aux pièces de madame!
arrière cuisine, dressing etc.. plus tard nous ferons peut être un auvent. Mais je doute, où nous habitons actuellement bien que le garage puisse contenir deux voitures cela fait au moins 10 ans qu'elles ne sont plus rentrées. Et pour cause il est entièrement encombré de plein de choses
sans doute inutiles, de toute façon il faudra bien se résigner à en jeter une grosse quantité, la nouvelle maison autant grande sera elle, n'aura jamais le volume que nous possédons actuellement avec un sous sol qui fait toute la superficie de la maison !
l'écriture n'étant pas ma tasse de thé eh bien ce sera plus les images qui auront la parole.
le plan :

à voir comment cela peut être pris en compte dans BBC
le vide sanitaire et le sous sol
pour faire plaisir à Chantal un ilot central !
Finalement en prenant son temps on arrive quand mêmeà un résultat pas trop mal avec ce logiciel A&C 3D, heureusement
qu'il y a les forums pour trouver les astuces.
vue 3D du Salon

vue 3D de la salle
Une Mezzanine avec sur le palier encore un espace pour Chantal!Pour moi aussi car peut être avec un peu de chance à travers cette fenêtre de toît on conservera une petite vue sur mer (au nord bien sur).
Du moins une vue suffisante pour juger de l'état de la mer avant de sortir en bateau
BBC et vue sur mer ne sont pas trop compatibles dans notre région, la mer est toujours au nord!
d'autres photos du projet
ASPECT TECHNIQUE du projet
Résistances Thermique Valeurs préconisées par BBC EFFINERGIE :


le choix des matériaux :
Ou alors il faut prendre le bloc de 50 cm de largeur(monomur bio climatisant) ce qui est quand même très volumineux mais bien sûr dans ce cas on obtient un R de 5.6!
Notre choix pour l'instant s'est porté sur la monomur brique à joints mince avec isolation supplémentaire incluse dans les alvéoles de la brique. Il existe deux nouveaux produits sur le marché (ces produits existent en Allemagne depuis longtemps mais en France c'est récent) la PR42 de Wineberger et la MZ8 de Bellenberg. Petit bémol l'avis du CSTB est en cours sur ce produit mais il est qualifié par un labo en Allemagne et l'ADME à qui j'ai posé la question me dit qu'il n'y à pas de pb on peut prendre les valeurs pour le bilan thermique, heureusement c'est vrai nous sommes en Europe une seule certification devrait suffire, sauf qu'il semble que les chiffres Allemands sont supérieurs aux résultats du cstb, en tout cas cela se vérifie pour la monomur 3b où il faut retrancher environ 0.6 aux chiffres de la doc commerciale allemande pour retrouver les valeurs du CSTB.
Selon la norme allemande les essais sont effectués à 0 % d'humidité relative , alors que le CSTB fait ses essais à 50% d'humidité , ce qui à mon avis est bien plus réaliste .
J'avais une préférence pour la PR42 de Winerberger son composant de remplissage est entièrement minéral alors que la MZ8 incorpore de la laine de roche.
En revanche les atouts de la MZ8 sont sa disponibilité en plusieurs épaisseurs dont le 36.5cm, ce qui à mon sens est suffisant avec un R=4.59 au final R=4 environ si on tient compte du "derating" de 0.6 bien que cela n'est pas forcément transposable d'un produit à un autre !. C'est l'ensemble de l'enveloppe qui doit être cohérent, murs, fenêtres, toîture. Un devis a été établi par la société AC2P qui distribue ce produit en France et les contacts sont très bons, ils viennent démarrer le chantier, poser le premier rang au millimètre, cela rassure, il parait qu'ensuite le montage des murs c'est un jeu de légos c'est à voir!
Monomur Bellenberg MZ8 de 36.5cm R= 4.59 pour les murs de la maison et monomur 3B de 30 cm R=2.77 pour les murs du garage et le mur intérieur.

IMPACT BELLENBERG
(1)UNE EVOLUTION CULTURELLE
ABOLITION DE L’ISOLATION INTERIEURE POUR LES MONOMURS DE QUALITE
L’isolant réduit le flux de chaleur entre deux espaces de températures différentes. L’inertie permet au matériau de stocker la chaleur et de la diffuser progressivement pour votre plus grand confort thermique intérieur.
L’isolation intérieure d’un mur à forte inertie lutte contre la diffusion lente et progressive de la chaleur et donc lutte contre le confort intérieur de l’habitat et augmente le besoin énergétique.
Eté comme Hiver, l’isolation intérieure retient la chaleur à l’intérieur de l’habitat, on parle de l’effet thermos.
(2) UN MATERIAU POLYVALENT
LA FORTE INERTIE DES BRIQUES BELLENBERG CORRESPOND AUX OCCUPATIONS CONTINUE ET INTERMITTENTE DE L'HABITAT ET AUX CLIMATS EUROPEENS
Pour une occupation en continue de l’habitat, l’inertie la plus forte apportera confort d’été accru et confort d’hiver maximum tout en minimisant drastiquement le besoin en consommation énergétique.
Pour une occupation par intermittence de l’habitat, l’inertie la plus forte apportera également les meilleurs confort d’été et confort d’hiver. Une très légère surconsommation sera constatée (parois à forte inertie et isolation répartie) du fait de l’inertie au début de chaque nouvelle occupation de l’habitat. Le recours à une énergie renouvelable trouvera ici tout son sens.
L’été, les parois à forte inertie s’imprègnent de fraîcheur la nuit et la restituent pendant la journée, s’opposant ainsi aux fortes chaleurs estivales. L’hiver, pendant la journée les briques BELLENBERG 3B et MZ8 se chargent en apport solaire leur permettant de s’opposer aux baisses brutales de températures la nuit.
A l’intérêt thermique des briques BELLENBERG, s’ajoute le double intérêt écologique et économique lié aux réductions des besoins énergétiques de chauffage et climatisation.
(3)LES MONOMURS 3B ET MZ8 INDUISENT UNE MEILLEURE QUALITE DE L’AIR INTERIEUR DE VOTRE HABITAT
HYGROMETRIE ET ASSAINISSEMENT
L’hygrométrie renvoie à la notion d’humidité de l’air dite humidité relative (à température définie : rapport entre teneur en vapeur d’eau de l’air ambiant sur capacité maximale de vapeur d’eau possible pour cette température).
L’habitat écologique devra à la fois être étanche à l’air pour éviter un gaspillage des consommations énergétiques liées au chauffage ou à la climatisation tout en permettant à la vapeur d’eau de s’extraire au mieux de l’habitat par le choix de matériaux adéquats comme les Monomurs 3B et MZ8 (respectivement 5-10 µ et 5-10 µ de résistance à la diffusion de la vapeur d’eau) et d’ une ventilation adéquate (VMC DOUBLE FLUX HAUT RENDEMENT pour HABITAT PASSIF ou VMC HYGRO B selon votre projet sans oublier le cas échéant les aérations nocturnes l'été).
D’autre part, les MONOMURS 3B et MZ8 luttent contre les condensations à l’intérieur de votre habitat car ils sont peu sensibles aux brusques variations de températures. Par ailleurs, leurs porosités permettent un rôle d’assainissement naturel de l’air dans le sens intérieur-extérieur et inversement. De plus, les MONOMURS 3B et MZ8 permettent l’utilisation d’enduits intérieurs accroissant leurs qualités d’assainissement de l’air ambiant par la destruction massive de certains composés organiques volatils contenus dans certaines peintures, colles et produits ménagers.
A propos de la Monomur extrait du Mémento des CASTORS 10e édition page 336:
"Comparons ! Dans une construction traditionnelle : parpaing + isolant, on observe une déperdition de 6.5Wh par mètre linéique, quand il fait -5°C à l'extérieur et 20°C à l'intérieur. Dans les mêmes conditions un mur construit en monomur bio bric de 37.5 ne perd que 2Wh.
Mieux encore, le monomur constitue une inertie importante qui optimise la régulation de la température en toutes saisons. Explication ! L'hiver, quand le soleil réchauffe en milieu de journée l'extérieur de l'habitat, le monomur accumule cette énergie naturelle qu'elle restitue à l'intérieur, une douzaine d'heures plus tard, soit au coeur de la nuit, au moment où le thermomètre s'affiche au plus bas.
Effet inverse, mais efficacité identique pour la saison estivale. Quand à l'extérieur le soleil darde ses rayons à la méridionale, le monomur diffuse à l'intérieur la fraicheur emmagasinée douze hzures plus tôt. La confrontation de ses capacités avec celles du polystyrène est éloquente. Quand 1m cube de ce dernier emmagasine 7,5Wh/K par degré d'élévation de la température, le monomur en accumule 212Wh/K.
Autre avantage appréciable sous nos latitudes, la terre cuite possède un fort pouvoir de régulation hydrométrique. Dans une ambiance saturée en vapeur d'eau, le monomur absorbe l'excédent qu'il restitue plus tard, sans que la présence d'humidité ne nuise à ses pouvoirs isolants. Cette capacité évite tout problème de moisissures et permet de diminuer les déperditions dues à un renouvellement d'air trop important en installant une ventilation mécanique contrôlée."
La brique monomur est un isolant naturel :
La brique monomur est peu sensible aux brusques variations de températures et n'est pas sujette aux condensations superficielles. Avec elle, on retrouve le concept des vielles maisons à murs épais et denses dans lequel l'inertie thermique permet de diviser par 4 l'amplitude thermique entre le jour et la nuit. Elle améliore la qualité de l'air intérieur par sa porosité naturelle, reste en osmose avec l'air extérieur et devient un véritable filtre naturel fonctionnant aussi bien dans le sens intérieur vers extérieur qu'inversement.
- Excellente inertie par un stockage de flux thermique dans la masse du mur et restitution par rayonnement entraînant une diminution du coût de chauffage, grâce à ses joints fins (1 mm) de hourdage horizontal et ses emboîtements par cannelures verticales.
L'argile naturelle assure une protection contre les effets géobiologiques néfastes comme les rayonnements telluriques, atmosphériques, magnétiques et électriques, contrairement au béton qui potentialise ces phénomènes.
Il faudra aussi s'équiper de la scie Alligator et du rouleau encoleur, une possibilité de location existe via la société AC2P. voir aussi leboncoin et hmdiffusion et ebay qui propose des lames pour scie alligator dt 2966 à 57€ (méfiance)
les ouvrants côté sud : baies coulissantes à translation, alu anthracite et bois intérieur, double vitrage à faible émissivité. Nous avions prévu une baie à galandage sur la cuisine ce qui aurait été très sympa pour accéder sur la terrasse l'été et bénéficier d'une très grande ouverture mais je crains que c'est incompatible BBC surtout au niveau de l'étanchéité.
pour l'instant le fournisseur n'est pas Choisi, j'ai regardé Minco et Bieber entre autres. Il faut des Uw de 1.4w/m² k max je crois. J'ai vu chez un auto-constructeur ce genre de baie compatible BBC il faut l'avouer ce n'est pas très esthétique, la structure est grossière il faut supporter le poids du triple vitrage, je ne sais pas si dans le cas du double vitrage avec argon la structure est aussi imposante ?
les ouvrants côté nord : triple vitrage, pas de baie, la fenêtre de la salle sera fixe genre fenêtre cinéma a priori l'étanchéité est plus simple à réaliser et devrait être meilleure, enfin je suppose.
Les Fenêtres de toît : seront également à triple vitrage avec volet incorporé
Velux ou Faktro
(gamme confort de Velux, avec vitre "bioclean" verre autonettoyant, dégradation par le soleil et lavage par la pluie est-ce vraiment efficace ? en tout cas pour le lavage il n'y aura pas de problème !)
La charpente : elle sera réalisée en fermettes cela me semble plus simple pour la réalisation comme j'ai déjà participé à la réalisation de 3 charpentes de ce type je vois comment m'y prendre. Elle sera recouverte de panneaux de fibre de bois avec un produit de chez Pavatex ou équivalent. les panneaux isoroof (en 18 ou 22mm) sont emboités et on réalisera en plus un cordon de mastic acrylic silicone(hum acrylic ou silicone pas très ecolo ?) pour l'étanchéité, BBC oblige ! voir l'exemple de JFT près de Brest
On utilisera des connecteurs métalliques pour l'assemblage afin de limiter les surépaisseurs de bois contre le mur de piedroitL'isolation des rampants et des combles : elle sera réalisée en deux couches de laine de cellulose de 10 cm (idéalement croisées mais entre les fermettes je ne vois pas comment faire) objectif R>5 pour les rampants et R>7 pour les combles ici on peut croiser sans problèmes et ajouter une troisième couche.
Après réflection et lecture de la doc Effienergie il faut pour le toit un R entre 6.5 et 10, donc 5 comme j'envisageais pour les rampants n'est pas suffisant, je vais sans doute me rabattre sur la traditionnelle Laine de verre : 200mm entre les fermettes + 100 mm deuxième couche croisée sur les fermettes. Des suspentes et rails seront montés pour supporter le placo , voir le schéma ci dessous
Au final on devrait avoir un R=8.9 pavatex(R=0.35 en 18mm) + LDV(R=5.7 en 200mm*600mm)+ LDV(R=2.85 en 100*1200mm)
Il semblerait que le Métisse soit meilleur au niveau déphasage ?, peut-on mixer, deux couches de métisse de 100 mm puis une couche de laine de verre ?
ventilation : double flux Aldes certainement (micro watt), je regarde également la températion j'ai vu un produit de chez Datec RTR 3000 environ 5k€ avec gaines .La pertinence de ce produit est à analyser coût, performance, fiabilité, autre point à ne pas négliger la propagation éventuelle du bruit dans les gaines de ventilations. Des retours d'expériences seraient souhaitables avant décision.
Nous avions prévu un puit canadien,mais il semble qu'avec notre climat tempéré l'amortissement de ce système n'est pas évident. Pour l'instant pas complètement écarté,
d'autant que je suis du genre à prévoir "ceinture et bretelles" sachant que ce qui n'est pas fait à la construction est quasi impossible après !
ECS : concernant le chauffe eau solaire il semble que cela ne soit pas non plus une bonne solution pour la Bretagne, je m'oriente vers un chauffe eau thermodynamique, Atlantic,Tresco, dedietrich etc..Il sera installé en zone chaude, environ 2700 €.
Chauffage : initialement nous avions prévu une PAC eau/eau avec forage vertical, la totale quoi ! mais devant le coût énorme proche de 20 k€ et le crédit d'impôt sur 2010 qui fond comme neige au soleil . J'ai envisagé une pac air/eau puis après des recherches sur différents forums puis des avis de plusieurs personnes il en ressort que ce type de pac n'est pas recommandé chez nous. En effet en Bretagne nous avons une humidité relative souvent élevée qui conduit à des givrages et dégivrages fréquents de la pac d'où une surconsommation de kwh électrique et un effondrement des performances.
Pour l'instant je ne sais plus, reste la chaudière bois à pellet c'est aussi un investissement lourd mais plus écologique. Peut être vais-je tout simplement me rabattre sur la simple chaudière gaz de ville surtout que le le lotissement est équipé (mais bon pas très écolo non plus, mais plus que l'électrique si on se réfère à Effiernergie!). Dans le bilan thermique le kwh gaz compte pour 1 kwh d'energie primaire , l'électrique 2.58, le plus écolo, le bois 0.6.
Quel que soit le système retenu, le rez de chaussée sera équipé d'un plancher chauffant, ceci permettra par la suite de changer éventuellement de système de chauffage. On peut espérer (rêver) qu'a terme le prix des pac eau/eau baissera.
Pour l'étage il n'y aura pas de PC, de simple panneaux rayonnants serviront d'appoint éventuel d'autant qu'il ne sera occupé qu'occasionnellement et sans doute très peu l'hiver, en revanche je pense quand même y faire parvenir le réseau d'eau du chauffage.
Comme c'est le gaz qui semble l'emporter l'étage sera équipé de radiateurs eau basse température, tout simplement des radiateurs surdimensionnés qui permettront de fonctionner à température basse. (mur chauffant ?)
Le toît : en ardoise pente 45°, une place en haut est réservée pour les 22 à 24m² de capteurs photovoltaïques, non décidé à voir.



